収納が変わると、暮らしが変わる
- 家の中が片付かない…
- 動線がごちゃつく…
- 家事がいつまでも終わらない…
そんな“小さなストレス”を解消する工夫が体感できます。
家づくりの第一歩として、気軽にご予約ください。
外観

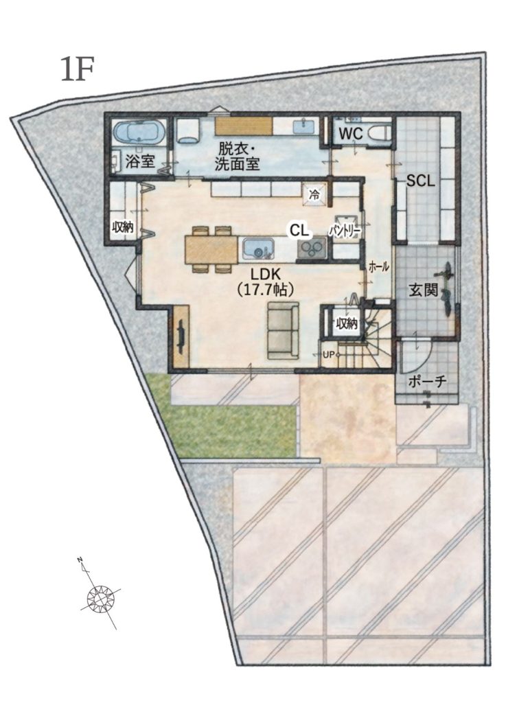
間取り


3LDK
敷地面積:172.22㎡(52.09坪)
延床面積:122.55㎡(37.06坪)
1F面積:66.24㎡(20.03坪)
2F面積:56.31㎡(17.03坪)
見どころ
大容量の土間収納

ベビーカー、子どもの外遊び道具、キャンプ用品、コート類まで「全部ここに置けたら⋯」が叶う玄関です。
※写真はイメージです。
家中に“迷わない収納”

ファミリークローゼット、パントリー、納戸を“必要な場所に”。
片付けの手間が一気に減り、探し物も少なくなります。
※写真はイメージです。
洗面動線と室内干しスペース

玄関→土間→脱衣洗面につながるスムーズな動線。洗面脱衣室には室内干しスペースを完備して、天気や時間を気にせず洗濯ができます。
共働きや夜干し派にぴったりです。
※写真はイメージです。
ご予約状況
| 11月22日
(土) |
11月23日
(日) |
11月24日
(月祝) |
|
| 10:00~11:30 | ○ | ▲ | ○ |
| 12:30~14:00 | ○ | ○ | ○ |
| 14:00~15:30 | ○ | ○ | ○ |
| 15:30~17:00 | ○ | ○ | ○ |
“家が片付く理由”が、1時間で理解できます。
図面ではわからない“暮らしやすさの仕組み”を、歩くだけで体感できます。
見学だけの参加も歓迎です。
まずは気軽に予約して、リアルな暮らしやすさを確かめてください。